Industrial Park Street, Thompsonville, MI

$175,000

Previous Next

5.00

Acres

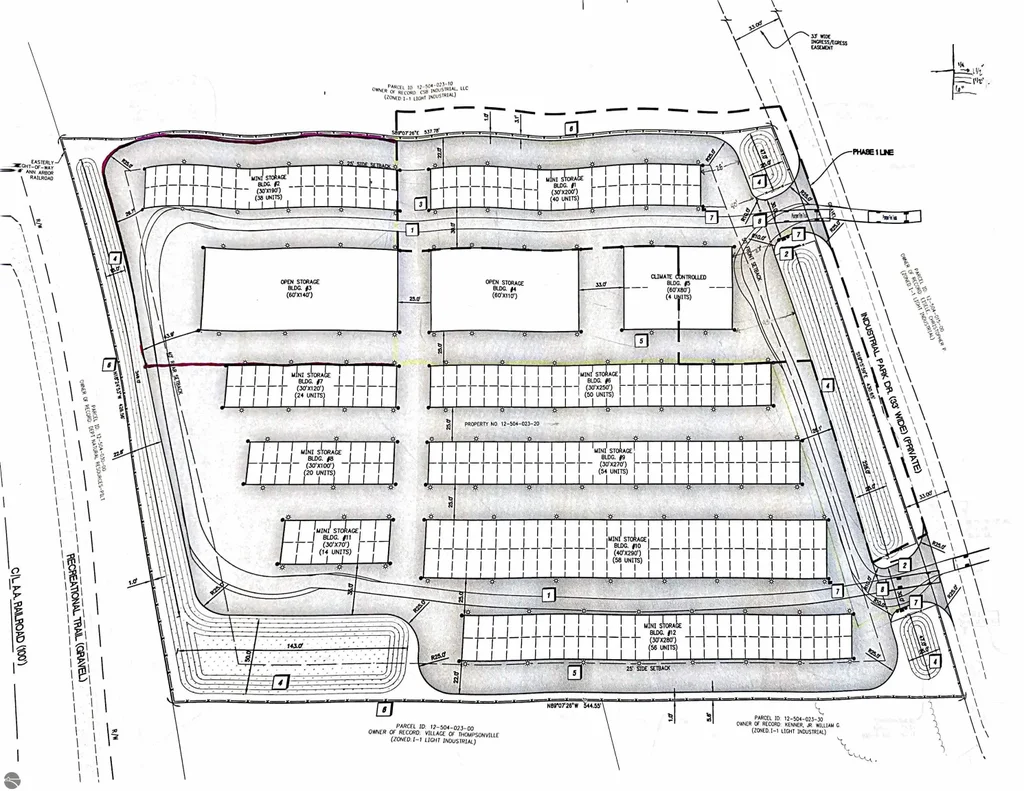
About Industrial Park Street

Prime opportunity for investors and developers: this industrial zoned, 5-acre parcel is a fully approved, shovel-ready self-storage development site. All engineered plans, schematics, and municipal approvals convey, with entitlements in place for 358 storage units plus designated open storage. Much of the legwork has been completed, offering significant time and cost savings for a buyer ready to build. The property itself is level and well-suited for construction, ensuring an efficient start to development. A 30 x 48 pole building with fenced area is included and currently leased, providing immediate cash flow during the construction stage—or it can continue as a long-term supplemental income stream. With rising demand for storage facilities, this property combines location, zoning, approvals, and income to present a rare investment opportunity. Whether you proceed with the approved project or adapt it to other light industrial uses, this parcel offers a streamlined path from acquisition to operation.

Features of Industrial Park Street

MLS® # 1939100
Price $175,000
Acres 5.00
Year Built 2026
Type Commercial
Sub-Type Industrial
Status Active
Association n/a

Community Information

Address Industrial Park Street
Subdivision n/a
City Thompsonville
County Benzie
State MI
Zip Code 49683

Amenities

Utilities None
Features None
Parking None
Is Waterfront No
Has Pool Yes

Interior

Heating None,None
Has Basement No
Basement Poured Concrete, Other
Fireplace No

Exterior

Exterior Features Steel, None
Lot Description 430 x 544
Roof Metal, None
Construction To Be Built

Additional Information

Date Listed September 29th, 2025
Days on Market 3
Zoning Industrial
Short Sale No
RE / Bank Owned No

Listing Details

Office502

Listing Map

Request a Showing

Provide a valid email address.
When would you like to view this property?