About Industrial Park Street
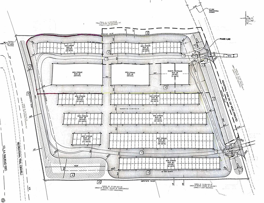
Prime opportunity for investors and developers: this industrial zoned, 5-acre parcel is a fully approved, shovel-ready self-storage development site. All engineered plans, schematics, and municipal approvals convey, with entitlements in place for 358 storage units plus designated open storage. Much of the legwork has been completed, offering significant time and cost savings for a buyer ready to build. The property itself is level and well-suited for construction, ensuring an efficient start to development. A 30 x 48 pole building with fenced area is included and currently leased, providing immediate cash flow during the construction stage—or it can continue as a long-term supplemental income stream. With rising demand for storage facilities, this property combines location, zoning, approvals, and income to present a rare investment opportunity. Whether you proceed with the approved project or adapt it to other light industrial uses, this parcel offers a streamlined path from acquisition to operation.
Features of Industrial Park Street
| MLS® # | 1939100 |
|---|---|
| Price | $175,000 |
| Acres | 5.00 |
| Year Built | 2026 |
| Type | Commercial |
| Sub-Type | Industrial |
| Status | New |
Community Information
| Address | Industrial Park Street |
|---|---|
| Subdivision | n/a |
| City | Thompsonville |
| County | Benzie |
| State | MI |
| Zip Code | 49683 |
Amenities
| Parking | None |
|---|---|
| Is Waterfront | No |
| Has Pool | No |
Interior
| Has Basement | No |
|---|---|
| Fireplace | No |
Exterior
| Lot Description | Industrial Park |
|---|---|
| Roof | Metal, None |
| Construction | Steel, None |
| Foundation | Poured Concrete, Other |
Additional Information
| Foreclosure | No |
|---|---|
| Short Sale | No |
| RE / Bank Owned | No |
| HOA Fees Freq. | Annually |
Listing Details
| Office | REO-TCBeulah-Frankfort-233027 |
|---|
